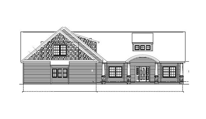
The Lewis Home, built on private owned land, offer special features: special features: hardwood floors, granite, cathedral ceiling, fireplace, covered deck
One of the reason’s the Lewis family chose Smolen Homes, is John’s creative mindset. He offers advice and options to fit their family and needs.











